ENSAYOS CON DIPOLOS DE
ALAMBRES PARA HF
Por: Ing. Ramón Miranda.
YY5RM
Saludos Colegas. En la actualidad y desde los inicios de la
radio, para Radioaficionados y usuarios del espectro
radioeléctrico en general, las antenas Dipolos construidas con alambres
conductores, representan la opción estándar de mayor economía para instalar
estaciones de radio en bandas HF. Con el
propósito de enriquecer conocimientos adquiridos en cursos de formación y destreza individual, en
el presente artículo se describe la
teoría básica e información práctica, necesaria para construir y optimizar
antenas Dipolos de alambres.
TEMAS
- 1. Longitud de resonancia y su relación con la corriente, voltaje RF e impedancia, en antenas Dipolos (en este tema se utilizan colores para referir o relacionar estas 4 magnitudes).
- 2. Técnicas para optimizar Dipolos de longitudes reducidas.
- 3. Relación de ondas estacionarias (ROE o SWR).
- 4. Longitud del cable coaxial.
- 5. Como variar la impedancia del Dipolo.
- 6. Balun.
- 7. Medidor de intensidad de campo, tipo RFS.
- 8. Sugerencias y comentarios finales.
ENSAYOS CON DIPOLOS
LONGITUD RESONANTE DE
LA ANTENA DIPOLO DE 1/2 λ
La antena es un dispositivo
transductor, que convierte una señal eléctrica, en ondas electromagnéticas (y viceversa) que se propagan en el espacio a una velocidad similar a la de la
luz. La longitud de onda (λ) representa la distancia recorrida por una
sola onda electromagnética, la cual a su vez determina el tipo de
propagación deseada y en especial, las características y dimensiones de las
antenas.
Existen longitudes
de antenas que mejor se adaptan o acomodan a la λ, las cuales determinan la mejor resistencia de radiación, optima distribución
de corriente
y máxima eficiencia de dicha antena (longitud
resonante de antena).
Por cada brazo de la antena, esta longitud
resonante presenta una distribución de corriente, la cual “siempre será de mínima
intensidad hacia el extremo donde culminan dichos brazos” y de máxima intensidad en los extremos donde
se conectan hacía la línea de transmisión, o directamente al transmisor. Por el
contrario, la
distribución del voltaje siempre será máximo hacia los extremos, donde
culminan los brazos de antena y mínimo voltaje en los extremos que conectan
hacia la línea de transmisión. La Dipolo estándar de 1/2 λ, se considera como una antena
compuesta de dos tramos o brazos resonantes de 1/4 λ cada uno y de polaridades opuestas.
Típicamente se
representa la distribución de corriente y voltaje como en la gráfica anterior (se
refieren a las amplitudes de ondas de ambas magnitudes). La gráfica siguiente representaría las
amplitudes de ondas, realmente como se verían mediante instrumentos de medición,
a lo largo de la antena Dipolo:
La relación entre estos voltajes
y corrientes
a lo largo del Dipolo estándar de 1/2 λ, determinan impedancia (Z ) mínima
en el centro de la
misma (aproximadamente 75 Ω para
Dipolos horizontales y 50 Ω para forma de V invertida) y máxima hacia los extremos.
Esta impedancia de antena es compleja,
es decir, está compuesta de porción real o resistiva (R de la siguiente grafica) y porción
imaginaria o reactiva (jX
de grafica). Cuando la longitud física de la
antena Dipolo es superior de la longitud resonante, entonces incrementa la
reactancia inductiva (XL de
signo positivo, ó +jX) de su
impedancia
compleja, si por el
contrario, es inferior de la longitud resonante, entonces
incrementa
la reactancia capacitiva (XC de
signo negativo, ó -jX).
La grafica siguiente muestra un análisis
virtual realizado mediante el programa MMANA-Gal,
donde se simula una antena Dipolo Horizontal HF, calculada para transmitir en 7.1
MHz, montada a 9 metros de altura, la cual
determinó resonancia en 7.104 MHz, con una impedancia compleja aproximada de Z = 70.78 –j0.0439 Ω (nota: cuando jX se aproxima a 0.0 Ω, indica correcta longitud de
resonancia).
La longitud resonante
de la antena, anula o cancela componentes reactivas (jX = 0.0 Ω) garantizando máxima
eficiencia de la misma, debido a que su impedancia compleja es puramente resistiva,
por lo tanto absorbe la máxima potencia posible, proveniente desde el
transmisor. Cuando la longitud física de la antena, no coincide
con la longitud de resonancia, entonces se incrementan las pérdidas a
causa de presencia de componentes reactivos en su impedancia
compleja (jX ≠ 0.0 Ω). Las imágenes MMANA-Gal siguientes, muestran el ancho de banda, SWR e impedancias
de la misma antena Dipolo HF resonante en
7.1 MHz, donde se aprecia que se hace larga (+jX) para frecuencias altas y se hace pequeña (-jX)
para frecuencias bajas.
Para antenas Dipolos de 1/2 λ, la longitud de resonancia típicamente
se calcula mediante una constante (142.5), la cual se divide entre la frecuencia
en Megahertz y el resultado dará en metros. Ejemplo: Para banda de 40 Metros, usando 7.1
MHz como frecuencia central del ancho de banda: 142.5 / 7.1 MHz = 20.07 metros, es decir, la
longitud de cada brazo del Dipolo medirá 10.03 metros (1/4 λ cada uno).
Esta longitud de
resonancia en antena, es menor en aproximadamente -5% de la 1/2 λ física con cual
se propagan las ondas electromagnéticas en el espacio libre y
se debe principalmente a la relación
longitud/diámetro, chaqueta (envoltura plástica) de los alambres conductores que
conforman ambos brazos del Dipolo, a esta reducción de
longitud se adicionan otros factores tales como, la
proximidad al suelo, el efecto de borde (Endeffect), tipo de metal conductor,
etc.
Para el caso de antenas Dipolos en V invertida, la proximidad entre el suelo y los
extremos del Dipolo, incrementan la reactancia capacitiva de la impedancia
compleja en la antena, haciéndola ver de mayor longitud y desplazando la
resonancia hacia otra frecuencia menor, por consiguiente se debe
restar hasta aproximadamente un -5% de la longitud calculada, es decir, pudiera
calcularse variando la constante desde 135, hasta 142.5 y dividirla entre la frecuencia. Se sugiere que los extremos deben estar lo
más separado posible del suelo y conformando un ángulo no menor de 90 grados en
el vértice (entre 90° y 120°).
A pesar que la estructura atómica del
cobre, permite mejor
conducción de corriente eléctrica que
el aluminio y que la RF circula por el exterior del metal conductor, en
experimento fallido realizado con una
Dipolo V invertida, construida con tubos de aluminio, el
exceso de reactancias desplazó significativamente la frecuencia de resonancia,
produciendo acortamiento excesivo en la longitud de la misma y
desmejoramiento considerable en la intensidad de campo.
La imagen siguiente representa la variación de
impedancia en el espectro de frecuencias, para una antena Dipolo estándar
de 1/2 λ, alimentada en el centro de la misma y calculada para transmitir en 20
MHz. Se aprecia que existen múltiples
frecuencias donde la impedancia de dicho Dipolo, adquiere valores máximos y
mínimos. A estas frecuencias se
les denominan armónicas y equivalen a múltiplos de la frecuencia principal o
fundamental, es decir:
·
Primera
armónica: 20 MHz x 1 = 20 MHz (frecuencia fundamental).
·
Segunda
armónica: 20 MHz x 2 = 40 MHz.
·
Tercera
armónica: 20 MHz x 3 = 60 MHz.
·
Cuarta
armónica: 20 MHz x 4 = 80 MHz.
·
Quinta
armónica: 20 MHz x 5 = 100 MHz.
Indiferentemente de la frecuencia, sea armónica o no, “la distribución de corriente en una antena
Dipolo, siempre será mínima hacia ambos extremos de la misma”. Esta condición, siempre determina altas
impedancias y altos voltajes hacia dichos extremos del Dipolo y es la
principal razón por la cual determinará mínima impedancia y máxima
corriente en el centro de la misma, exclusivamente en sus frecuencias armónicas
impares, es decir, una
antena Dipolo estándar, calculada para transmitir en 20 MHz, también permite
transmitir con desequilibrios de impedancias aceptables, en
aproximadamente 60 MHz, 100 MHz, 140 MHz, etc.
Empleando los mismos colores
anteriores (hasta la 5ta armónica), en la imagen siguiente se aprecian máximas amplitudes
de corrientes hacia el centro de una antena Dipolo, exclusivamente en
sus frecuencias armónicas
impares (primera,
tercera
y quinta).
Notas importantes:
· La
mayoría de rangos de frecuencias asignados para Radioaficionados, son
armónicos.
· Existen
antenas Dipolos en las cuales se desplaza el punto de alimentación, pero manteniendo su misma longitud de resonancia (Dipolos OCF [Off-Center Feed], o simplemente Dipolos Windom ), éstas permiten aprovechar las frecuencias
armónicas pares (detallado más adelante).
· Se
usan colores aleatorios en las últimas 2 imágenes.
TÉCNICAS PARA OPTIMIZAR
ANTENAS DIPOLOS DE LONGITUDES REDUCIDAS
❶ Es posible optimizar antenas
Dipolos de longitudes aleatorias, compensando la longitud de resonancia mediante dispositivos
reactivos de signos contrarios (bobinas o capacitores) a sus reactancias
propias.
Las bobinas incorporan reactancia inductiva (XL), de signo positivo, ideales
para cancelar reactancias negativas en dipolos de longitudes reducidas. Por el contrario, los capacitores incorporan reactancia capacitiva (XC), de signo
negativo, ideales para optimizar Dipolos de longitudes alargadas (de poca importancia para el tema).
Aunque estas técnicas no mejoran la eficiencia de la antena, si optimizan
el mejor rendimiento posible en ella (acorde a su tamaño), mejorando a su vez
la distribución ondas de
voltajes y corrientes en el sistema y minimizando posibles riesgos de daños en
la etapa final del transmisor.
Las características de la bobinas
para antenas Dipolos, están determinadas principalmente por la frecuencia y la corriente
que circula por ella, seguido por el diámetro, número y separación de espiras,
más otras características de poca importancia. Las bajas frecuencias en bandas HF, potencia RF y distanciamiento del
centro del Dipolo, hace que se requieran bobinas voluminosas y pesadas.
Cuanto más distanciado del centro del
Dipolo se coloquen las bobinas, la baja corriente que circulará por ellas, requieren mayores
números de espiras (con alambres de menores espesores) para lograr el mismo
efecto reductor de longitud.
Mediante bobinas, es posible
segmentar las antenas Dipolos multibandas.
En el artículo “BOBINAS PARA DIPOLOS.pdf” se detalla la construcción artesanal de bobinas desarmables y los procedimientos para sintonizar cualquier antena Dipolo de longitud reducida.
En antenas Dipolos Dualband (resonante para dos bandas) estas bobinas suelen
colocarse a una distancia del centro del Dipolo, equivalente al 1/4 λ de la frecuencia mayor. Ejemplos:
·
Para
bandas 10 y 40 metros (28.5 MHz y
7.1 MHz) = Se colocan aproximadamente a 2,5 metros del centro del Dipolo.
·
Para
bandas 15 y 40 metros (21.25 MHz y
7.1 MHz) = Aproximadamente 3.35 metros del centro.
·
Para
bandas 20 y 40 metros (14.25 MHz y
7.1 MHz) = Aproximadamente 5 metros del centro.
En el artículo MINIANTENA DIPOLO.pdf, se muestra un ejemplo de construcción y
optimización de una Mini Antena Dipolo HF dualband, expandible en tamaño e
ideal para adaptarse en cualquier espacio disponible (mínima longitud
requerida = 7 metros).
Para lograr mayor ancho de banda en
antenas Dipolos Monobandas (ejemplo: Solo para banda de 40 metros, por
armónicos, operan en bandas 10, 15 y 20 metros, con pequeñas dificultades), éstas
bobinas suelen colocarse cercanas de los extremos del Dipolo, donde la
corriente de antena es menor, pero se debe enrollar mayor número de espiras
para lograr el mismo efecto reductor de longitud.
En el artículo “ANTENA DIPOLO YY5RM.pdf”, se describen técnicas para optimizar
antenas Dipolos OCF de longitudes
aleatorias, las cuales logran resonancia modificando el número de espiras en
una sola bobina, incorporada a 90 centímetros del extremo del brazo
izquierdo de la misma y se acoplan a
la línea coaxial mediante balun de relación modificable. Estas permiten adaptarse al máximo del
espacio reducido y mal distribuido, logrando excelente equilibrio de
impedancias y máxima eficiencia de acorde a su longitud.

❷ Otros procedimientos para optimizar antenas Dipolos de longitudes
reducidas, son los sistemas de pliegues (existen diseños de Dipolos totalmente plegadas, con uno y hasta con doble
pliegue, como son las Antenas Morgain), adaptadores
de carga lineal (consiste en plegar solo el centro de la Dipolo) y adaptadores capacitivos en los extremos
del Dipolo (típicamente llamados crucetas o radialitos).
RELACIÓN DE ONDAS
ESTACIONARIAS (ROE O SWR)
La relación de ondas estacionarias (ROE o SWR) es una pérdida que afecta el rendimiento del sistema de antena y que
pone en riesgo de daños al transmisor. Es
causada por desequilibrios de
impedancias entre antena ↔ línea de transmisión, o línea de transmisión ↔ transmisor. En la
actualidad la mayoría de equipos para Radioaficionados son diseñados para
cargas de 50 Ω, lo cual, para evitar pérdidas de
potencia, las líneas y antenas igualmente deben adaptarse para impedancias de
50 Ω.
Sabiendo que el transmisor tiene una
impedancia interna de 50 Ω (Zg), usando línea coaxial de 50 Ω (ZO = impedancia característica), si la
antena es de longitud resonante y se corrige totalmente el desequilibrio de
impedancias entre dicha antena y la línea coaxial (balun adaptador de
impedancias, o similar), entonces tendremos la posibilidad de máxima eficiencia del sistema (correcto modo plano, solo cuando jX = 0 Ω y 1.0 ROE).
Para lograr ROE perfecta, es
necesario el uso de costosos y complicados instrumentos de medición denominados
“Analizadores de antenas”, los cuales hacen posible discriminar lecturas de las
componente resistiva y reactiva de la impedancia compleja, ROE, pérdidas de
retorno, coeficiente de reflexión, porcentaje de potencia transmitida,
capacitancia, inductancia y otros.
Cuando hay desequilibrio de
impedancias, parte de la energía que viaja en un sentido (ondas en
sentido hacia la carga o antena = incidentes), es reflejada en sentido
contrario (ondas
en sentido hacia el generador o transmisor = reflejadas) y viceversa cuando hay
desequilibrios en ambos extremos de la línea.
Las interferencias entre ondas incidentes y reflejadas, determinan ondas resultantes de la sumatoria vectorial entre ambas y cuyas relaciones entre amplitudes máximas y amplitudes mínimas, determinan la relación de ondas estacionarias, o simplemente ROE.
Para facilitar el entendimiento, suponiendo que la antena es una carga es resistiva,
para calcular la ROE o SWR (entre la antena y la línea), “referencialmente” es posible dividir
ambas impedancias, usando la mayor como dividendo y la menor como divisor,
ejemplos: 50 Ω / 50 Ω = 1.0 ROE, 75 Ω / 50 Ω
= 1.5 ROE, 50 Ω / 25 Ω = 2.0 ROE, 100 Ω / 50 Ω = 2.0 ROE, etc.
2.
Antena
= 150 Ω, cable coaxial = 50 Ω.
Cálculo 150 / 50 = 3.0 ROE.
3.
Antena
= 25 Ω, cable coaxial = 50 Ω.
Cálculo 50 / 25 = 2.0 ROE.
4.
Antena
= 50 Ω, cable coaxial = 50 Ω. Cálculo 50 / 50 =
1.0 ROE (excelente equilibrio).
La gráfica siguiente muestra el rendimiento de una antena, respecto a
la ROE. Ejemplo: Si la desadaptación de impedancias es 2.0
ROE, el rendimiento de la antena será el 88.9%
LONGITUD DEL CABLE COAXIAL
La RF que se transporta por la línea
de transmisión, tiene una velocidad de
propagación 60% a 95% menor que a la velocidad de la Luz. Para cualquier
impedancia característica de cable coaxial, la longitud de resonancia se
calcula usando múltiplos de 1/2 λ y multiplicado por el factor de velocidad de
propagación (VP) del mismo cable coaxial.

Ejemplo: Para la banda de 40 metros, usando 7.1 MHz
como frecuencia central del rango y empleando cable coaxial RG8/U con VP de
0.82, el cálculo sería: 150 dividido
entre 7.1 y multiplicado por 0.82, el resultado = 17.32 metros ( longitudes
correctas: 17.32 metros, 34.64 metros, 51.97 metros, etc.). Esta misma longitud se hace resonante
para frecuencias armónicas (frecuencias superiores: bandas de 20, 15, 10, 6 metros), no para
frecuencias inferiores (no resonante para bandas de 60, 80 y 160 metros).
Sabiendo que en presencia de ROE (≠
1.0), la distribución de la corriente y del voltaje RF toman amplitudes
diferentes en cada punto a lo largo de la línea coaxial y éstas se repiten a
cada 1/2 λ, al usar líneas coaxiales de longitudes aleatorias, mediante
sencillos cálculos es posible determinar que este fenómeno afecta la impedancia
compleja de la antena, vista desde el extremo de la línea que conecta al
transmisor (Zi ), afectando la jX del sistema, la cual a su vez desplaza la ROE y frecuencia de resonancia original de la antena. Para evitarlo y facilitar el correcto
ajuste de la antena Dipolo, se sugiere el uso de longitudes múltiplos de 1/2 λ
en la línea coaxial,
aunque para cualquier longitud aleatoria en dicha línea, existirá una longitud
física en la antena que no es la de resonancia (y viceversa) pero que es
capaz de cancelar las componentes reactivas del sistema y a pesar de sus parámetros
alterados el sistema se podrá optimizar, pero nunca con su máxima eficiencia.
La siguiente gráfica explicativa muestra
un ejemplo de desplazamientos de ROE y frecuencia de resonancia original en una
antena CB 11
metros, con resonancia en 27.4 MHz (vista desde el extremo de la
línea que conecta al transmisor), donde para este caso se realizan dos
recortes en dicha línea coaxial: Es
posible observar que en 27.6 MHz, inicialmente la ROE es 1.25, en el 1er
recorte el desplazamiento ocasiona un incremento hasta 1.55 ROE y en el 2do
recorte incrementa hasta 1.95 ROE.
En los archivos; “Longitud del
Cable Coaxial y Nodos.pdf” y “Desplazamiento
de la Frecuencia de Resonancia.pdf” se explican estos fenómenos y la
importancia del uso de longitudes múltiplos de 1/2 λ en líneas coaxiales.
Para mayor información relacionada con longitudes de la línea coaxial, se sugiere el enlace siguiente:
COMO VARIAR LA
IMPEDANCIA DEL DIPOLO
Entre las posibilidades
para obtener buen equilibrio de impedancias, podemos variar: ❶ La
altura (con respecto al suelo), ❷ El ángulo del
vértice (en caso de V invertida), ❸ Desplazar el
punto de alimentación, ❹ Variar la
longitud, ❺ Modificar la
relación de conversión del balun (no pertenece a la antena. Ver en tema de balun), ❻
Optar por
acoplar con antenatuner (no requiere explicación). Es necesario aclarar cualquier técnica afectará
ligeramente la longitud y frecuencia de resonancia.
❶ (Altura)
= Las ondas reflejadas por el suelo, al
pasar por la antena inducen una corriente de fase diferente a la generada por
ella, debilitando o reforzando la corriente total que circula por dicha antena.
Siempre que la altura no supere por lo
menos 2 λ (típico en
bandas HF, debido al gran tamaño de sus λ), este efecto afectará significativamente
la impedancia y longitud de resonancia del Dipolo. En la gráfica siguiente se aprecia que la
impedancia del Dipolo (horizontal) tiende a estabilizar sobre las 2 λ de
altura y que en aproximadamente cada 1/4 λ (0.25 λ) de altura, se repite la impedancia
estándar de la misma:
En la figura M1-3 se
muestra el análisis virtual de una antena Dipolo horizontal, calculada para la
banda de HF 40 metros, 7.1 MHz, montada a 9 metros de altura. Se observa que al variar dicha altura, desde 2 hasta 15
metros sobre el suelo, la
impedancia varía desde 91.78 –j36.51 Ω hasta 7.02 –j37.93 Ω.
❷ (Ángulo del vértice) = Es posible abrir o cerrar el vértice o ángulo conformado entre
ambos brazos del Dipolo, hasta obtener mínima lectura de ROE. Se sugieren ángulos entre 90° ↔ 120° visto desde el plano vertical (vista de frente) y entre 120° ↔ 180° vista desde arriba.
En la figura M1-4 se muestra
el análisis virtual de la misma antena Dipolo HF 40 metros, pero en V invertida y calculada con el vértice a 9
metros de altura (identificada con ②
e impedancia = 60.48 –j0.06 Ω), donde se varía el ángulo conformado entre ambos brazos,
de manera que ambos extremos queden desde 1 metro (① = 46.96 –j8.93 Ω), hasta 3 metros (③ = 70.96 +j5.12 Ω) de altura sobre el suelo.
La figura M1-5 muestra baja impedancia (7.4 –j66.48 Ω) en la misma antena Dipolo HF 40 metros, 7.1 MHz y
conformando ángulo de 30° entre ambos
brazos. Para la simulación es
necesario aumentar la altura hasta 11 metros.
❸ (Desplazar el
punto de alimentación) = Sabiendo que la impedancia en antenas Dipolos de
1/2 λ es mínima en el centro y máxima
hacia los extremos de la misma, es posible
desplazar el punto de alimentación (Dipolos OCF) con el propósito de ubicar
la impedancia que mejor se adapte al sistema, o a la relación de conversión del
balun. Esta técnica también permite adaptar las longitudes de ambos brazos del
Dipolo en espacios mal distribuidos, conservando su máxima eficiencia (la
longitud y frecuencia de resonancia serán afectadas en la medida que la
alimentación se aleje del centro).
Estas antenas Dipolos OCF no dependen de la altura, ángulo del vértice o
cualquier otro método similar para lograr excelente equilibrio de impedancias,
incluso el 1.0 ROE. La antena Dipolo Windom se alimentan a 1/3 de
su longitud total y se acopla hacia la línea coaxial mediante un balun de
relación 6:1 (ejemplo: 300 Ω ↔ 50 Ω) y de relación 4:1 (200 Ω ↔ 50 Ω)
para antenas Dipolos Windom Carolina, cuya relación de asimetría entre ambos
brazos se aproxima al 40% ↔ 60%.
La principal desventaja de Dipolos
OCF es la posibilidad de irradiación en
la línea, razón por la que se requiere adicionar choques RF para suprimir
el problema. Típicamente se emplean ferritas
toroidales o enrollando varias espiras del mismo cable coaxial, preferiblemente
lo más próximo posible de la antena (también se sugiere separar del mástil o
torre del tramo de línea antes del choque RF, debido a que ésta pudiera
irradiar energía, igual como si formara parte de la misma antena).
Preferiblemente no alimentar antenas Dipolos OCF a más de 4/5 de su longitud total (aproximadamente entre los puntos #6 y 7 de la figura M8-13), debido a que el comportamiento
de su impedancia compleja, corrientes y perdida de resonancia comienzan asemejar con antenas de hilo largo, las
cuales se alimentar desde uno de sus extremos, donde las corrientes son mínimas
y voltajes RF máximos (máxima impedancia). Generalmente se construyen con
longitudes aleatorias (no resonantes) y se acoplan hacia la línea coaxial
mediante unun de relación 9:1. Estas
antenas de hilo largo son preferidas por aficionados radioescuchas, pero debido
a que son antenas de compromiso, su
principal desventaja para transmitir RF, es la necesidad de adicionar equipos
sintonizadores (en el artículo “ANTENA
DE HILO LARGO.pdf “ se adicionan mayores detalles).
❹ (Variar la
longitud) = No es lo correcto,
pero es el típico procedimiento empleado para optimizar antenas. Consiste en construir el Dipolo a una
longitud ligeramente superior de la calculada y en el momento del montaje,
recortar pequeños tramos de alambres por igual en ambos extremos de los brazos
de dicho Dipolo, hasta obtener mínima lectura de ROE, en la frecuencia deseada. En la figura M8-12 se analiza una antena
Dipolo horizontal en una frecuencia fija y su efecto al variar la longitud
desde 5.30 hasta 5.08 metros (modifica la ROE, pero la variación de jX indica
que se hace resonante para otra frecuencia).
BALUN
Las principales funciones
del balun, como su nombre lo indica, es balancear y corregir la desadaptación de
impedancias existente entre la antena Dipolo y la línea de transmisión.
El efecto de balanceador
de la antena, consiste en compartir equitativamente la energía proveniente desde
la línea de transmisión (o directamente desde el transmisor), entre ambos
brazos del Dipolo.
Existen múltiples diseños
de balun, con diferentes relaciones de conversión de impedancias (ejemplos: 1:1, 2.25:1, 4:1 y 6:1).
Balun especial para antenas Dipolos montadas a baja altura.
Realmente los baluns son
transformadores para RF, donde la relación
de conversión de impedancias lo determina el cuadrado (N2) de la
relación entre el número de espiras de sus dos devanados (primario y
secundario), o lo que es inverso, la raíz cuadrada (
) de la relación entre el número de espiras de
sus devanados determina la relación de conversión de impedancias. Ejemplo:
La raíz cuadrada de 4 es 2, por lo
tanto, para un balun de relación 4:1, la relación entre el número de espiras de
sus devanados es 2 (N = 2), es decir, si tiene 4 espiras en el devanado
primario, debe tener 8 espiras en el secundario o viceversa.
La relación entre el número de
espiras sus devanados (N), es igual para la relación entre voltajes y
corrientes en sus devanados. La potencia
es la misma (P =V x I “Sin considerar pérdidas”) en ambos devanados. Ejemplos:
Para un balun de relación 4:1, la
transformación de impedancias es cuatro veces (50 Ω ↔ 200 Ω, ó 75 Ω ↔ 300 Ω,
etc.), pero la relación
entre voltajes y corrientes es dos veces (2:1), es decir, que si duplicamos
el voltaje RF, debido a que la potencia debe ser igual en ambos devanados, la corriente
debe bajar a la mitad (ejemplo típico para 200 Watts de potencia RF: Si hay 100 voltios con 2 Amperios en devanado
de 50 Ω, debe haber 200 voltios con 1 Amperio en el devanado de 200 Ω.
Para un balun de relación 9:1 la
transformación de impedancias es nueve veces (50 Ω ↔ 450 Ω, 75 Ω ↔ 675 Ω,
etc.), la Raíz Cuadrada
es = 3 por lo tanto las relaciones entre el número de espiras, voltajes y corrientes
son tres veces (3:1).
Otra de las funciones del balun es balancear un sistema de antena de dos
polos irradiantes, con respecto al cable coaxial, evitando posible irradiación
en dicha línea (corriente I3).
Para comprobar el correcto balanceo del Dipolo, debajo de cada brazo se
debe medir la intensidad de campo (RFS) para comprobar que ambos estén
irradiando energía y para el caso de Dipolos alimentados en el centro, es
posible comprobar simetría, además de observar cómo responden los cambios en la
antena al realizar ajustes (es más efectivo que solicitar reportes de señal).
En el artículo “Balun, Centro de antena y Dipolos.pdf“, se explican técnicas para
construcción casera de los mismos, procedimientos para modificar la relación de conversión de
impedancias, construcción del centro de antena para Dipolos y algunos otros
detalles.
Existen baluns construidos con cables
coaxiales de longitudes específicas, que igualmente balancean y transforman
impedancias en antenas Dipolos u otros sistemas. Típicamente de relaciones 1:1 y 4:1:
El balun coaxial de 1/2 λ (180°)
produce desfases de ondas, cuyas interferencias o relación entre amplitudes,
duplican el voltaje RF y reducen la corriente hasta la mitad, en el punto de
alimentación de la antena (acople de impedancias con relación de conversión
4:1), igual como lo haría cualquier transformador para RF o balun bobinado.
El balun coaxial de relación 1:1 no
transforma impedancia, consiste en un arnés de 1 λ, donde la línea se conecta a
1/3 λ de éste. La relación
entre ondas de voltaje RF y corriente en sus extremos, son similares a los de
la entrada.
MEDIDOR DE INTENSIDAD
DE CAMPO, TIPO DETECTOR DE RF (RFS)
Los RFS son instrumentos que detectan presencia, e intensidad de señales
RF, no requieren
conectar al sistema ni trabajar en rango de frecuencias específico (carecen de
selectividad), sencillamente se colocan cercano de cualquier antena HF, VHF o
UHF y al transmitir, estos mueven la aguja del galvanómetro indicando presencia
de RF, generalmente en escala de cero a diez. Esto nos ayuda a saber cuando una
antena emite bien, debido a que en oportunidades tenemos buena ROE, pero la
antena no emite bien (baja ganancia, campo deformado o mal direccionado para
la propagación deseada, etc.).
Cuando se instala una antena en automóvil,
con ayuda de estos instrumentos RFS, es
posible saber hacia cual dirección del vehículo se emite mejor señal (hacia
donde hay mayor intensidad de campo). Igualmente permite optimizar
distanciamiento entre elementos de una antena Yagi, para obtener la máxima
direccionabilidad y ganancia de la misma (colocando frente a la antena).
En condiciones irregulares del
terreno se puede dar un giro de 360° alrededor de la antena, a una distancia
constante de ésta, con el propósito de saber
hacia dónde está deformado el campo de la antena, o hacia que dirección se
obtiene la mayor repuesta.
Al construir Choques para RF o cuando
hay algunas pérdidas, es posible
apreciar si la línea coaxial irradia energía, o si hay RF en la sala de
radios (especialmente al usar equipos o
dispositivos adaptadores en la línea y próximos al radio).
Al ajustar ganma-matchin de Dipolos (Driven), aro de antenas Ringo, recortar o alargar Dipolos, ajustar enfasadores
en arreglos colineales de antenas o cualquier otro ajuste similar, típicamente
usamos medidor de ROE, pero si complementamos con el RFS, mejora la apreciación
de cambios realizados en la antena.
Es posible construir instrumento RFS
improvisado, utilizando material de desecho.
SUGERENCIAS Y
COMENTARIOS FINALES
¿ QUE LONGITUD DE CABLE
COAXIAL DEBERÍA USAR EN HF ?
En Bandas HF, dependiendo de la distancia entre el radio y la
antena, preferiblemente usar cables
coaxiales cortados a longitudes teóricas (calculada y de ser posible usar
instrumento analizador de antenas), construir
antenas Dipolos un poco más largas de las longitudes teóricas, para optimizar
en el momento del montaje, variando sus longitudes físicas y demás parámetros (ángulo entre brazos, altura, etc.), hasta obtener mínima lectura de ROE. Preferiblemente iniciar los ajustes en la frecuencia
más baja del rango deseado y de ser posible complementar con la mayor
indicación de RFS alrededor de la antena.
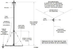
PREPARACIÓN DEL TUBO
MÁSTIL PARA LA ESTACIÓN DE RADIOAFICIONADO
(APROVECHADO AL MÁXIMO)
Todo Radioaficionado desea instalar sus
antenas en una torre. Inicialmente es
posible adquirir un tubo mástil de 9 a 15 metros de altura, preferiblemente del
tipo telescópico, aunque si
desea reducir costos, es posible ensamblarlo con un tubo de 6.6 metros de largo
(usado en cercas de alfajol), en el cual se adiciona otro tubo de 3 metros de
largo (usado en instalaciones eléctricas tipo EMT). Debido a la diferencia entre
ambos diámetros, se deben colocar anillos de material liviano entre ambos tubos.
Para suspender 2 antenas HF de
alambres, es posible adicionar una “tee” en el extremo superior del tubo mástil,
con el propósito de colocar 2 poleas, lo cual permitiría darle mayor
estabilidad a dicho tubo mástil y resistencia a vientos de altas velocidades. Para minimizar posible inducción de RF hacía
los vientos tensores del mástil, que pudieran deformar los diagramas de radiación en ambas antenas
HF, es conveniente segmentar la longitud de dichos vientos mediante aisladores:
La fotografía siguiente muestra un
ejemplo de mástil aprovechado al máximo.
De optar por esta configuración, en www.qrz.com/db/YY5RM se detalla la construcción casera de cada una de las antenas siguientes:
1.
Dipolo
V invertida = Dualband para 40 y 80 metros.
2.
Dipolo
Slooper = Plegada
o Windom con balun coaxial, para 10 – 15 metros.
3.
Doble
Bazooka = Esta antena opera
en amplios rangos de las VHF y UHF.
4.
Yagi
VHF 2 metros = Pudiera ser
cualquier antena (altura privilegiada).
5.
Yagi
2.4GHz = Usada para
internet inalámbrico.

PARA CULMINAR
La intención del presente material,
es brindar apoyo didáctico y práctico para Colegas Radioaficionados y técnicos
que ensayan con antenas Dipolos de alambres en frecuencias HF.
Atentamente…
…Ramón Miranda. YY5RM.
Instructor de Electrónica en el Radio Club Venezolano.
Enlaces para descargar el archivo (en formato pdf):
(22-10-2019) = https://documentcloud.adobe.com/link/review?uri=urn:aaid:scds:US:2fdec8b2-8e06-46a4-ad3b-0278f1f2af36
(22-10-2019) = https://www.dropbox.com/s/oah1ngccaovkbq5/ENSAYOS%20CON%20DIPOLOS.pdf?dl=0
Igualmente disponibles y actualizados desde: www.qrz.com/db/YY5RM
Actualizado el 29-12-2018.















































Excelente artículo colega, muy completo.
ResponderEliminar73 de HI8CJG, Cándido Guzmán desde San Cristóbal, Rep. Dominicana.
saludos ramón es pino yy5la muy completo tu ensayo y en cualquier momento nos vemos por el rdio clud un abrazo 73 cordiales
ResponderEliminarGracias Colega Cándido ( HI8CJG ), estamos QRV. Saludos por República Dominicana. Espero copiarlo en la frecuencia.
ResponderEliminarHola Ingeniero Pino, años sin saber de usted. Nos veremos pronto. QRV.
ResponderEliminarMuchas gracias por compartir de forma didáctica tus conocimientos. 73 desde Perú.
ResponderEliminar